Achtung: die ReSI Plattform wurde mit Ende 2018 geschlossen. Hier klicken fuer mehr Informationen.

    Diese Seite dient nur mehr als Archiv für die Beitraege die in den letzten 22 Jahren gesammelt wurden.


ReSI Regionales Informationssystem
 NACHRICHTEN

ReSI Startseite
Regionales
Vermischtes
Leute
Sport
Kino
Was ist los?
Wirtschaft

Umwelt

Meist Gelesen
Meist Kommentiert
Meist Bewertet

Alte und neue News
im Archiv suchen.

 SERVICES

Aktuelles Wetter
Livebilder

 VEREIN ReSI

Infos über ReSI

  WICHTIGE LINKS

Wirtschaft
Tourismus
Vereine
Kultur


Mediathek
Nachhaltigkeit

Mitfahrbörse
fahrgemeinsam.at

Regionales-Vermischtes
Neue Mietwohnungen in Putzleinsdorf

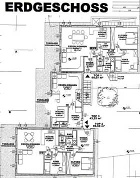
Hermann Höfler errichtet ein Wohnhaus mit 5 Mietwohnungen


PUTZLEINSDORF: Ein Baugrundstück im Ausmaß von ca. 1.000 m2 im Bereich der Ortseinfahrt "West" (zwischen dem Wohnhaus Anreiter und dem Grundstück der Wohnungsfreunde) befand sich im Eigentum der Gemeinde.

Dieses Grundstück wurde an Herrn Hermann Höfler, Berg veräußert. Dieser wird ein Miet-Wohnhaus mit insgesamt 5 Wohneinheiten errichten. Noch in diesem Jahr soll dabei der Rohbau fertiggestellt werden.

Die Wohnanlage wird mit insgesamt 10 Stellplätzen (5 davon als Carport ausgeführt) und einem Kinderspielplatz ausgestattet.

Auch dieses Gebäude wird in einer eher modernen Bauweise mit einem Pultdach ausgeführt.

Zusammen mit der Wohnanlage der "Wohnungsfreunde" und dem Wohnhaus der Familie Anreiter wird sich ein Ensemble ergeben, welches aufeinander abgestimmt dem gegenwärtigen Trend in der Bauweise entspricht.

Die Fertigstellung dieser 5 Mietwohnungen ist für 2006 geplant. Interessenten können sich bereits jetzt am Gemeindeamt (AL Gottfried Kriegner) oder bei der Familie Höfler melden!

Wir freuen uns, dass durch diese private Initiative das Angebot an zeitgemäßen Mietwohnungen in Putzleinsdorf wieder wesentlich verbessert wird und wünschen den Bauherren viel Erfolg.

 

Quelle: Marktgemeinde Putzleinsdorf, erschienen am 13.8.2005
Der Artikel wurde 1144 mal gelesen   


SCHLAGZEILEN

 

© Regionales Informationssystem www.ReSI.at, ZVR-Zahl: 555296147